NT nuoma ir pardavimai Šiaulių apskrytije

Mobilusis
+37065780667

+37067145995

dirbame
Pir-Pen: 08.25 -17.00
el.paštas
sauliausbustas@gmail.com
Mus rasite
Dvaro g. 64-101 (iš kiemo pusės), Šiauliai

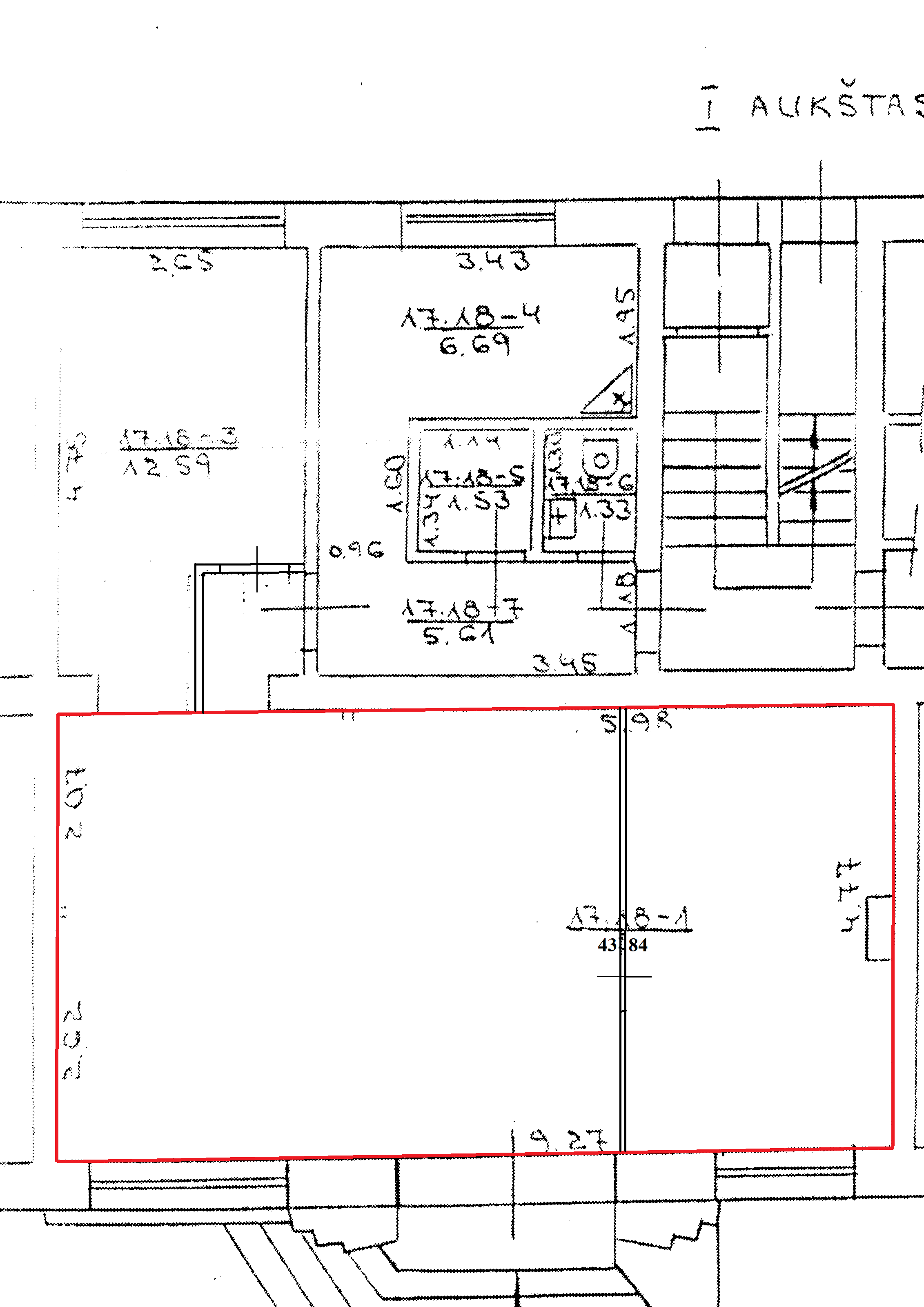
Šiauliai, Centras, Dvaro g., biuro, prekybinės, paslaugų paskirties patalpos nuomai


Plotas:  50 - 71,59 m²

Kaina:  300 - 500 Eur/mėn +GPM

Išnuomojamos labai gerai įrengtos šviesios 43,84 m² komercinės patalpos Dvaro g. 49. Patalpos randasi centrinėje miesto dalyje, neseniai atnaujintos Dvaro gatvės pašonėje su automobilių stovėjimo aikštelėmis, netoli centrinio bulvaro, 1 aukštas, atskiras įėjimas iš gatvės pusės, suremontuotos, vientisa didelė patalpa, atskirtos laikina konstrukcija, kuria esant reikalui galima būtų panaikinti, šviesios, san. mazgas, visos miesto komunikacijos, priešgaisrinė ir apsauginės signalizacijos, centrinis miesto šildymas, galima nuoma su esančiais baldais. Patalpų paskirtis prekybinė, todėl labai tiktų įsirengti komercines patalpas, tačiau puikiai tiktų ir kitokiai veiklai, galima reklama. Labai gera vieta, randasi šalia renovuotos Dvaro gatvės, patogus privažiavimas, mokamos automobilių stovėjimo vietos. Nuomos kaina 300 Eur/mėn. plius GPM ir komunaliniai mokesčiai. Galimybė nuomotis visas patalpas kartu, kurių plotas 71,59 m², nuomos kaina 500 Eur plius GPM ir komunaliniai mokesčiai. Daugiau informacijos tel. 867145995.