NT nuoma ir pardavimai Šiaulių apskrytije

Mobilusis
+37065780667

+37067145995

dirbame
Pir-Pen: 08.25 -17.00
el.paštas
sauliausbustas@gmail.com
Mus rasite
Dvaro g. 64-101 (iš kiemo pusės), Šiauliai

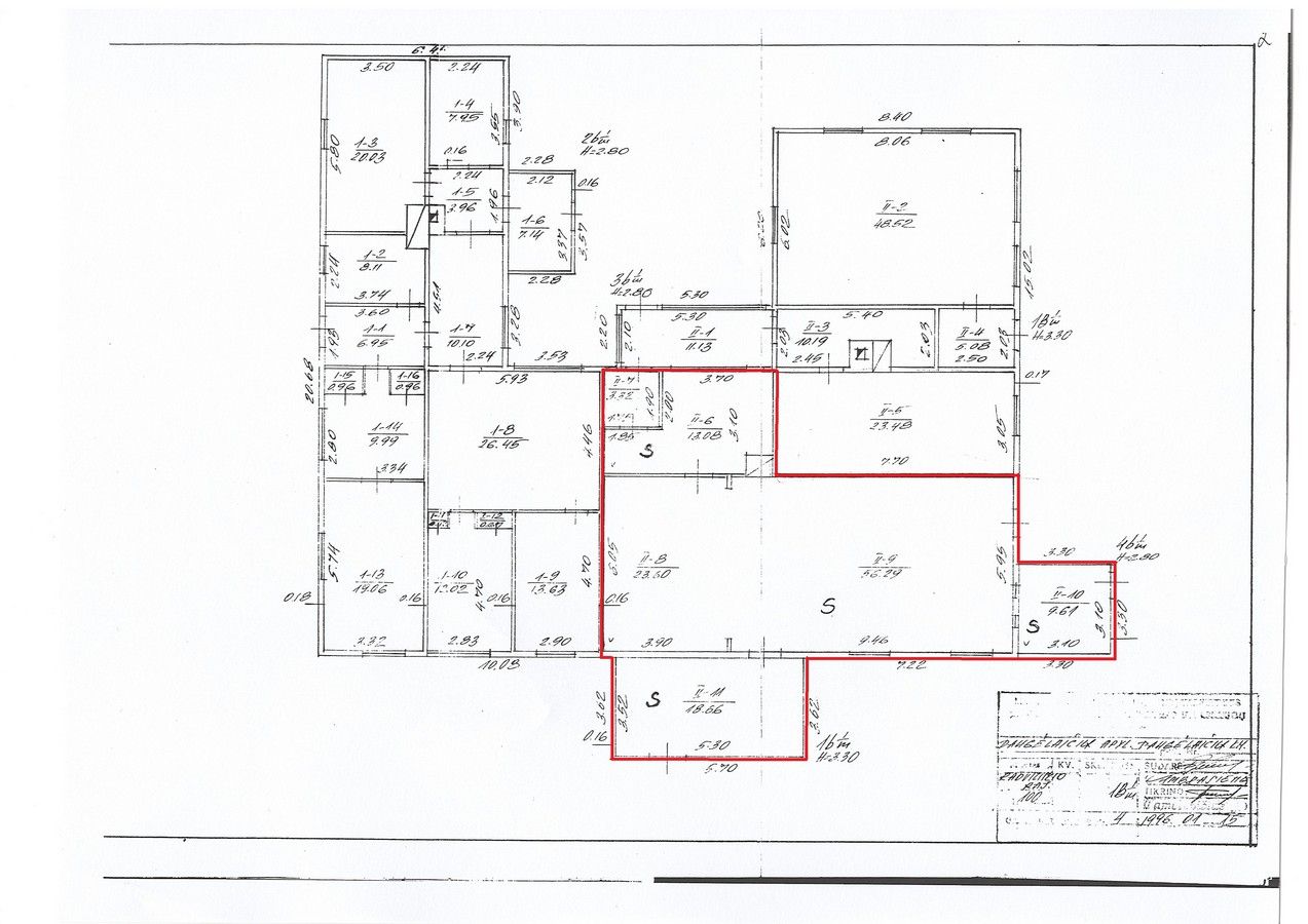
Radviliškio r. sav., Daugėlaičių k., Dvaro g., biuro, paslaugų, sandėliavimo, gamybinės, kita paskirties patalpos


Plotas:  121 m²

Paskirtis: Administracinė, paslaugų, sandėliavimo, gamybos ir pramonės, kita

Kaina:  10000 Eur

Parduodamos labai pigiai 121 m² patalpos Dvaro g. 11, Daugėlaičių k., Radviliškio r. Patalpų paskirtis administracinė, buvusi kultūros salė su scena: didelė salės erdvė 56,29 m² ir scena 23,60 m² bei kitos pagalbinės patalpos. Salės grindys iš plytelių, scenos – medinės, patalpose yra elektra, dvejos laukinės durys, langai plastikiniai. Patalpos puikiai tiktų sandėliavimui arba kitai veiklai organizuoti. Patalpose buvo pečius, tačiau dabar jo nėra, galimybė pastatyti naują ir pajungti į esamą dūmtraukį. Iki pastato puikus privažiavimas bet kokio tipo transportui. Patalpoms priklauso 20,22 a žemės sklypo iš 62 a. Pastatas 1938 m. statybos iš rąstų, apkaltas, stogas skardinis, viso pastato plotas 371,36 m², dar bus du bendrasavininkiai. Vienas bendrasavininkis įsurengęs gyvenamąsias patalpas ir gyvena pastoviai, todėl galima įsirengti gyvenamąsias patalpas, netoli kanalizacija, galimybė pasijungti. Šalia pastato yra bendruomenės namai, todėl patalpos puikiai tiktų ir kultūrinei veiklai organizuoti. Pastatas randasi šalia istorinės vietos, kieme pirmųjų partizanų žuvusių 1919 m. prieš Bermontininkus paminklų skveras. Sklypo apačioje teka upeliukas Taušė, Beržės intakas, labai graži gamta. Atstumas iki Radviliškio tik 9 km. Daugiau informacijos tel. 867145995.