NT nuoma ir pardavimai Šiaulių apskrytije

Mobilusis
+37065780667

+37067145995

dirbame
Pir-Pen: 08:00 -15:00
el.paštas
sauliausbustas@gmail.com
Mus rasite
Vilniaus g. 118, Šiauliai

Šiauliai, Dainiai, Gardino g., biuro, prekybinės, paslaugų, maitinimo, medicinos, kita paskirties patalpos nuomai 


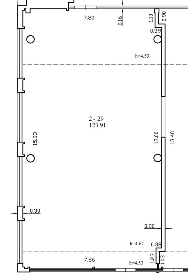
Plotas:  123,91 m²

Patalpų skaičius: 1

Kaina mėn.: 2000 € + mokesčiai

Išnuomojamos labai geroje vietoje esančios 123,91 m² patalpos naujausiame pastate Šiauliuose prekybos centre Kiemas Gardino g. 3. Patalpos randasi pirmame aukšte priešais McDonaldą, langai į tris puses, labai gerai matomos iš visų pusių tiek iš Gardino gatvės, tiek iš Tilžės gatvės, įrengti du įėjimai, esant poreikiui galimybė patalpas atskirti per pusę, įrengti dar vieną įėjimą. Patalpose įrengtas grindinis šildymas iš centralizuoto miesto šildymo sistemos, atskiras šildymo reguliavimas su termostatu, atvesta rekuperacija, tačiau dar nepajungta, todėl galimybė derinti išdėstymą ir pajungimą, palikta galimybė išdėstyti kondicionierius, atvestas vandentiekis ir kanalizacija, pagal poreikį galimybė įrengti tualetą, virtuvę, kriaukles, sienos, grindys paruoštos apdailai. Prekybos centras Kiemas tai naujausias pastatas ir žaliausias pastatas Šiauliuose, atitinkantis visus naujausius techninius reikalavimus, pritaikytas žmonėms su negalia, energinė naudingumo klasė A+, šiuolaikiškas liftas, didelė automobilių stovėjimo aikštelė ir dar daug kitų privalumų. Pastate įsikurs sporto klubas GymPlius, medicinos ir sveikatingumo centrai, maitinimo paslaugas ir kitas paslaugas teikiančios įmonės. Nuomos kaina 20 Eur/m² plius PVM. Daugiau informacijos tel. +37067145995.

Daugiau skelbimų ir nuotraukų galite rasti paspaudę šią brokerio nuorodą: https://www.realu.lt/brokeriai/saulius-sendzikas