NT nuoma ir pardavimai Šiaulių apskrytije

Mobilusis
+37065780667

+37067145995

dirbame
Pir-Pen: 08:00 -15:00
el.paštas
sauliausbustas@gmail.com
Mus rasite
Vilniaus g. 118, Šiauliai

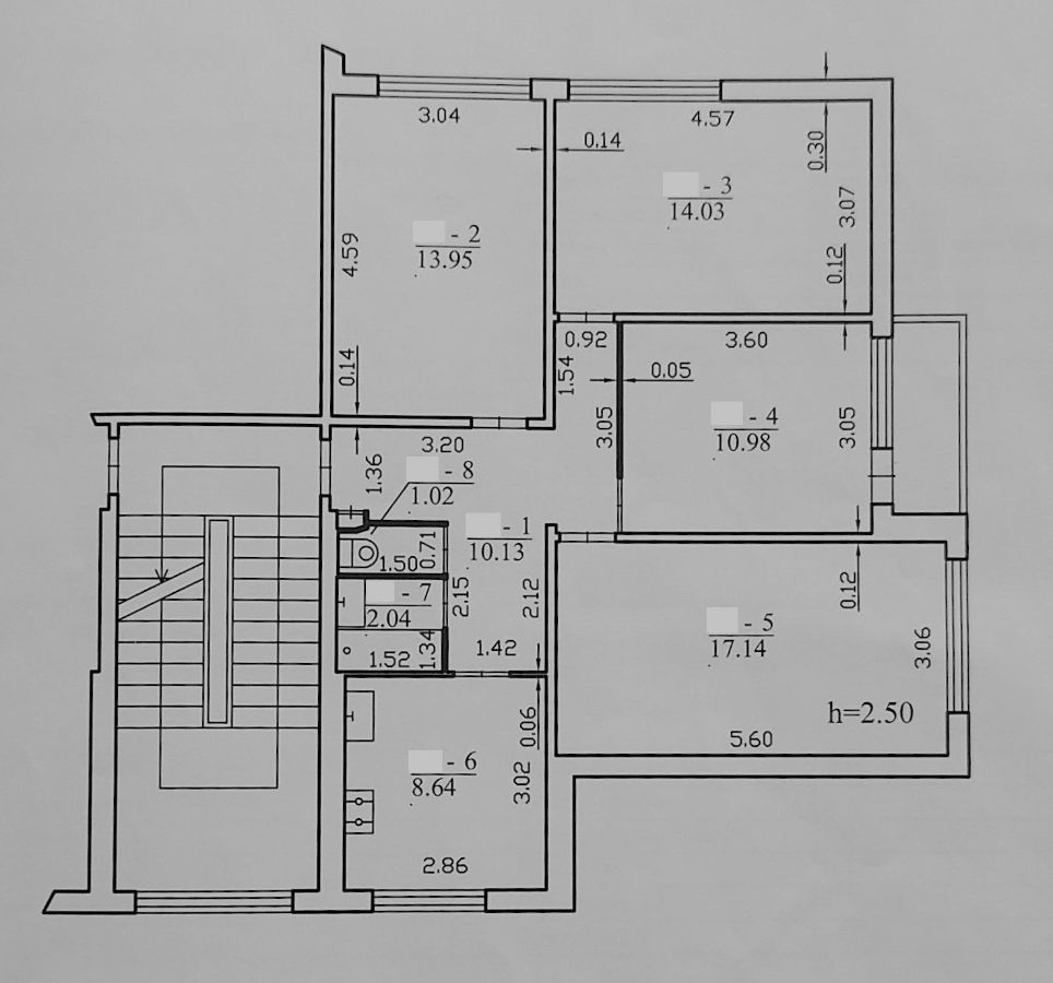
Šiauliai, Dainiai, Kviečių g., 4 kambarių butas


Objekto tipas:  butas

Bendras plotas:  77,93m²

Kambariai:  4

Aukštas: 3 iš 5

Šildymas:  Centrinis

Kaina:  60000 Eur

Parduodamas labai pigiai 4-ių kambarių butas Kviečių g. 18. Buto bendras plotas 77,93 m², 3/5 aukštas, pakeisti vandentiekio ir kanalizacijos vamzdynai, radiatoriai, įstatytos šarvo durys, plastikiniai langai, parduodamas su visais baldais ir buitine technika arba be jų pagal poreikį, sandėliukas rūsyje 4,88 m², balkonas nestiklintas, kampinis, reikalingas remontas. 1992 m. statybos blokinis namas, tvarkinga bendrija, kodinė spyna, pakeisti langai, kameros ant namo, automobilių stovėjimo aikštelė, vaikų žaidimo aikštelė. Gera vieta, šalia futbolo stadionas su dirbtine danga, netoli mokykla, autobusų stotelė, prekybos centras Akropolis ir kitos parduotuvės, geras susisiekimas. Labai gera investicija, galimybė pirkti su banko paskola, padėsime tvarkyti dokumentus. Maža šildymo kaina: 2023 m. sausio mėnesį buvo 117,67 Eur, vasario – 97,41 Eur, kovo – 88,84 Eur. Daugiau informacijos tel. 867145995.