NT nuoma ir pardavimai Šiaulių apskrytije

Mobilusis
+37065780667

+37067145995

dirbame
Pir-Pen: 08:00 -15:00
el.paštas
sauliausbustas@gmail.com
Mus rasite
Vilniaus g. 118, Šiauliai

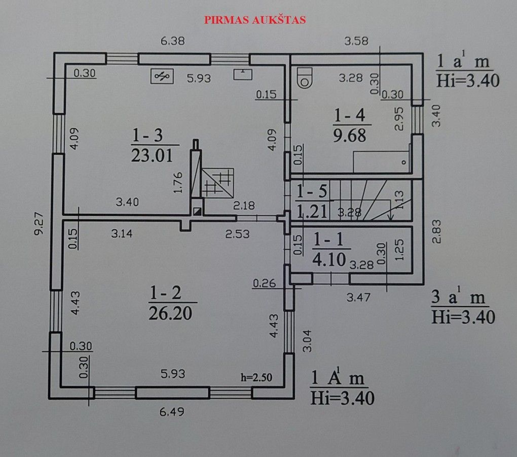
Šiauliai, Centras, Tilžės g., rąstinis namas


Plotas: 117,54

Sklypo plotas: 13,63a

Kambarių sk.: 3

Aukštų sk.: 1

Metai:  1939 statyba, 2018 renovacija

 Pastato tipas: Rąstinis

Šildymas: Centrinis kolektorinis, dujinis, kietu kuru

Vanduo: Šulinys, vietinis vandentiekis

Įrengimas: Įrengtas

Kaina:   169000 €

Parduodamas šiuolaikiškai įrengtas skandinaviško stiliaus rąstinis namas miesto centre netoli Ginkūnų ežero su dideliu sklypu, visais baldais ir buitine technika. Namo bendras plotas 117,54 m², 1 aukšto su pastoge, C energinio naudingumo klasės, šildomas dujiniu katilu, švediška krosnelė, rekuperacija, mediniai laiptai, balkonas, visuose aukštuose san. mazgai. Pirmas aukštas skirtas laisvalaikio zonai, kurioje yra didelė svetainė su didele virtuve, san. mazgas su integruota katiline. Antras aukštas skirtas poilsio zonai, kuriame yra du miegamieji kambariai, balkonas ir san. mazgas. Šildymas pirmame namo aukšte grindinis, pastogėje - radiatoriais, visos miesto komunikacijos, pajungtas vietinis vandentiekis. Namas rąstinis 1939 m statybos, 2018 m atlikta rekonstrukcija, apšiltintos sienos ir stogas pagal naujus reikalavimus. Didelis žemės sklypas 13,63 a, aptvertas, sutvarkyta aplinka, apželdinta, kieme šulinys, ūkiniai pastatai, kuriuos galima griauti arba rekonstruoti, namas stovi atokiau nuo gatvės šurmulio. Gera vieta, šalia parduotuvė ČIA, netoli prekybos centras Tilžė, LIDL, Ginkūnų ežeras, puikus susisiekimas. Labai gera investicija, galimybė sklype papildomai statyti kitus statinius, galimybė pirkti su banko paskola, padėsime tvarkyti dokumentus. Apžiūrai laiką derinti iš anksto. Daugiau informacijos tel. +37067145995.

Daugiau skelbimų ir nuotraukų galite rasti paspaudę šią brokerio nuorodą: https://www.realu.lt/brokeriai/saulius-sendzikas