NT nuoma ir pardavimai Šiaulių apskrytije

Mobilusis
+37065780667

+37067145995

dirbame
Pir-Pen: 08:00 -15:00
el.paštas
sauliausbustas@gmail.com
Mus rasite
Vilniaus g. 118, Šiauliai

Šiauliai, Zokniai, mūrinis namas


Plotas: 120 

Sklypo plotas: 9,31 a

Kambarių sk.: 3

Aukštų sk.: 1

Metai: 2023

 Pastato tipas: Mūrinis

Namo tipas: Namas (gyvenamasis)

Šildymas: Centrinis kolektorinis, aeroterminis

Vanduo: Artezinis, vietinis vandentiekis

Įrengimas: Įrengtas

Kaina:   160000 €

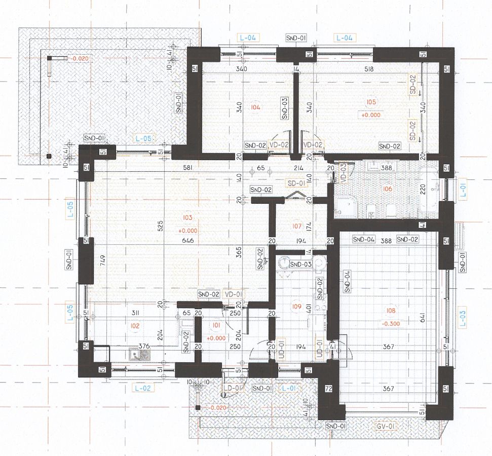
Parduodamas naujai statomas vieno aukšto gyvenamasis namas su garažu Zokniuose. Namo bendras plotas pagal projektą 120,35 m², vieno aukšto, aukštis 4,93 m, A++ energinės naudingumo klasės. Labai geras namo išplanavimas: svetainė su valgomuoju 36,78 m², du miegamieji kambariai 15,40 ir 11,56 m², virtuvė 8,29 m², garažas 23,52 m², san. mazgas 8,54 m², drabužinė 3,38 m², katilinė 7,78 m², tambūras 5,10 m². Sklypas 9,31 a ploto, prie namo numatyta dengta terasa virš 20 m². Name įrengtas grindinis šildymas su oras-vanduo šildymo sistema, vanduo iš šalia esančio gręžinio, vietinė kanalizacija su valymo įrengimais, garažas su pakeliamais automatiniais vartais. Namo statyba jau įpusėjo, todėl namas gali būti parduodamas su 80 % baigtumu (vidinės sienos tinkuotos, grindys betonas, pajungtas šildymas, vandentiekis, elektra išvedžiota iki taškų, vandentiekis ir kanalizacija išvedžiota iki taškų, nepajungta rekuperacija, neįrengtos lubos), tačiau gali būti su 100 % baigtumu ir pridavimu, kadangi namo Pardavėjas pats statytojas. Pardavimo sąlygos su kiekvienu klientu derinamos atskirai. Galime padėti su vertinimu ir patarti su paskolomis.
Gyvenamojo namo pagrindinės savybės: Sienos mūras iš 18 cm storio silikatinių blokelių apšiltintas 30 cm putų polistirenu „Neoporas“ ir dengtos fasadiniu tinku, pamatai apšiltinti 25 cm putų polistirenu, stogas keturšlaitis dengtas rulonine danga, apšiltintas 45 cm putų polistirenu su nuolydžiu, langai 3-jų stiklų A++ klasės, pertvaros mūrinės, perdengimas aukšto monolitinis betonas, stogo konstrukcijos karkasinės. Patalpos šildomos šilumos siurbliu Oras-Vanduo, rekuperacija pajungiama su 100 procentu baigtumu. Pilna lauko pastato apdaila, žemė išlyginta, dalinis tvoros įrengimas. Labai gera vieta, asfaltuotas privažiavimas, geras susisiekimas. Šalia pastatyti 2 namai jau parduoti, galima namo rezervacija. Dėl apžiūrų derinti laiką iš anksto. Kaina 160000 Eur, pilnas baigtumas 210000 Eur. Daugiau informacijos tel. 867145995.