NT nuoma ir pardavimai Šiaulių apskrytije

Mobilusis
+37065780667

+37067145995

dirbame
Pir-Pen: 08.25 -17.00
el.paštas
sauliausbustas@gmail.com
Mus rasite
Dvaro g. 64-101 (iš kiemo pusės), Šiauliai

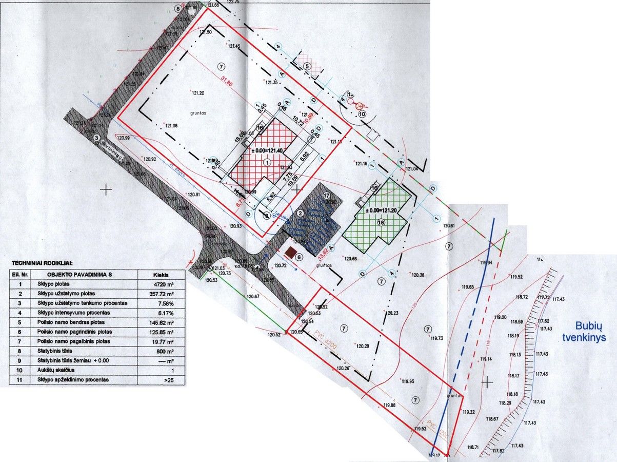
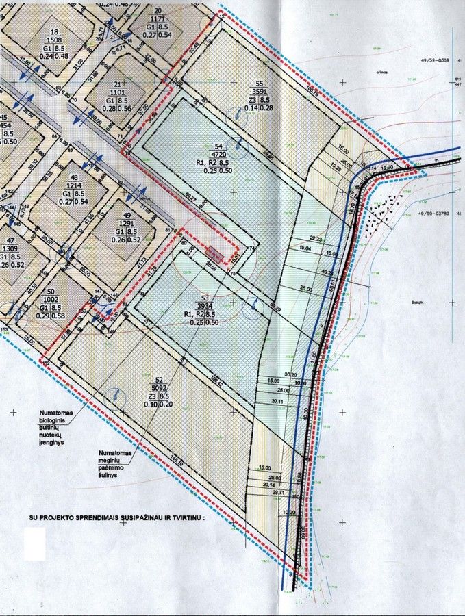
Šiaulių r. sav., Raizgių k., Sportininkų g., namų valdos, rekreacinės paskirties sklypas


Objekto tipas:  Sklypas

Plotas : 18,87 a

Paskirtis:  
Namų valda, rekreacinė

Kaina:  27000 Eur


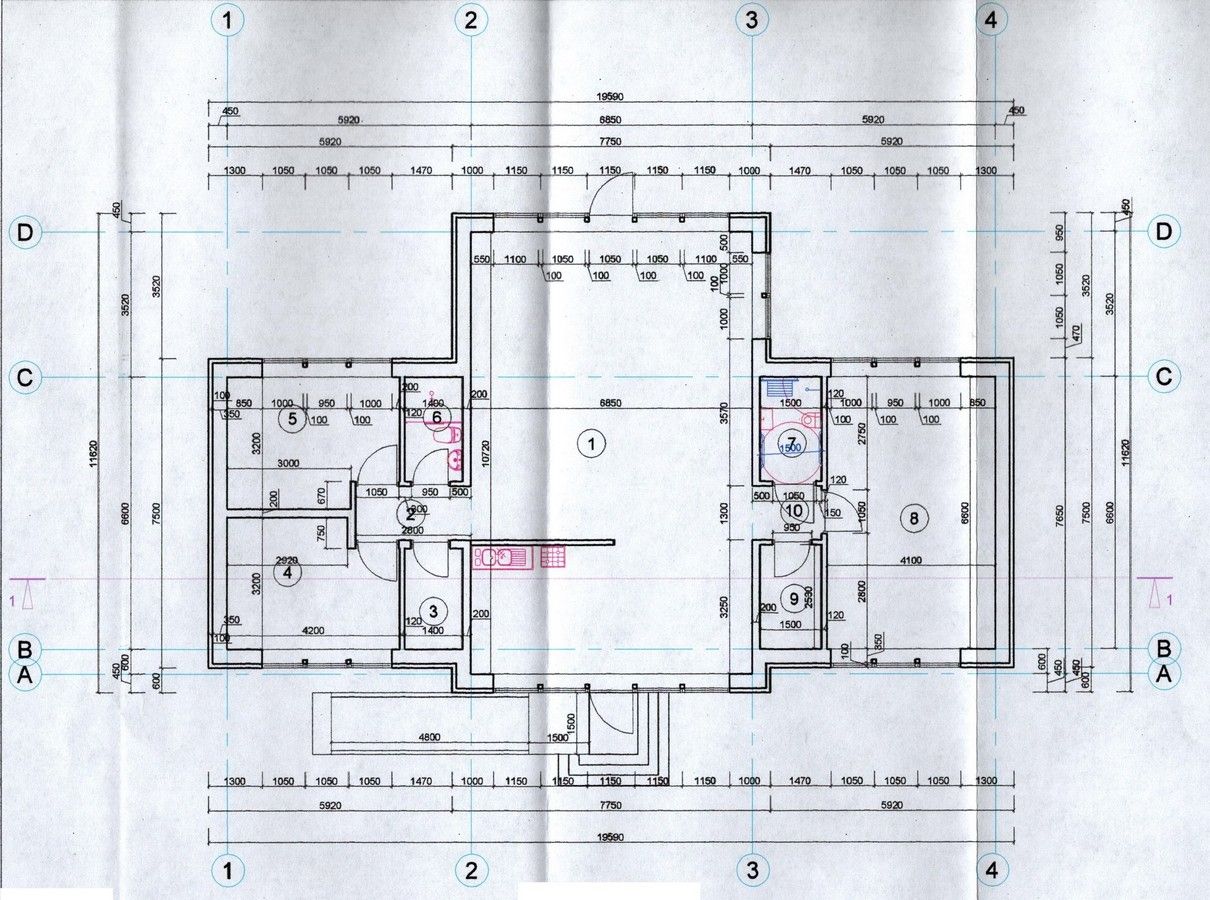
Parduodamas labai geroje vietoje 18,87 a sklypas su projektu ir leidimu poilsio namo statybai šalia Šiaulių jūros Sportininkų g. 23. Bendras sklypo plotas yra 47,20 a, numatyta dviejų poilsio namų statyba, parduodama dalis sklypo su nustatyta naudojimosi tvarka, sklypo naudojimo būdas – Rekreacinės teritorijos. Sklypas randasi labai gražioje vietoje, atskirame sklypų rajone, kuris ribojasi su Bubių tvenkinio pakrante. Į sklypus padaryti įvažiavimai, atvesta elektra ir lietaus kanalizacija, reikės kartu su kaimynu įsirengti nuotekų valymo įrenginius ir vandens gręžinį. Iki sklypų puikus privažiavimas - asfaltuotas kelias, atstumas iki Aukštelkės 4,5 km, o iki Šiaulių Akropolio tik 9 km arba 5 minutės kelio automobiliu, labai gera vieta poilsiui arba gyvenimui, į teritoriją patekimas tik pro pakeliamą užtvarą, todėl pašalinių žmonių patekimas bus apribotas. Atlikti sklypo kadastriniai matavimai, padaryti projektai ir patvirtinti, gauti leidimai statybai, todėl belieka pranešti apie statybą ir statyti namą. Pagal projektą numatyta: 145,62 m² ploto vieno aukšto poilsio namo statyba, 3-ių kambarių plius svetainė, virtuvė, drabužinė ir 2 san. mazgai. Energinio naudingumo klasė gali būti palei poreikį ir norus, šildymas numatytas geoterminis, vandentiekis iš šachtinio šulinio, kanalizacija-bendri valymo įrengimai su kaimynu, elektra iš skydinės prie sklypo ribos. Pagrindiniai projektiniai sprendiniai: poilsio namas turi būti pritaikytas žmonėms su negalia, pamatinės sijos (rostverkai) ant gręžtinių polių, sienos iš bpicf blokelių, viršutinė perdanga medinė, stogas šlaitinis iš profiliuotos skardos, šildymas grindinis, fasadas klijuojamas iš lauko akmens imituojančių plokščių, kiti sprendiniai pagal poreikį ir norus. Numatytų inžinerinių pajungimų atstumai minimalūs: elektros kabelio 57 m, vandentiekio vamzdžio 28 m, kanalizacijos vamzdžio 51 m. Galimybė statyti kitus papildomus statinius, nes užstatymo galimybės tai leidžia (yra 25 procentai, išnaudota 7,58 procento). Kaina 27000 Eur. Daugiau informacijos tel. 867145995.