NT nuoma ir pardavimai Šiaulių apskrytije

Mobilusis
+37065780667

+37067145995

dirbame
Pir-Pen: 08:00 -15:00
el.paštas
sauliausbustas@gmail.com
Mus rasite
Vilniaus g. 118, Šiauliai

Šiauliai, Centras, Aušros al., 6 kambarių butas


Objekto tipas:  butas

Bendras plotas:  168,57

Kambariai:  6

Aukštas: 2 iš 2

Šildymas:  Centrinis, aeroterminis, dujinis

Kaina: 250000 Eur

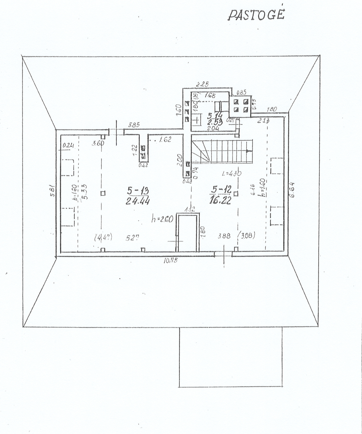
Parduodamas išskirtinis 168,57 m² butas miesto centre istoriniame Vlado Bitės name Aušros al. 15A. Butas randasi antrame aukšte per du aukštus, susideda iš keturių kambarių antrame aukšte ir dviejų patalpų pastogėje, visos miesto komunikacijos, autonominis šildymas dujiniu katilu, rekuperacija, kondicionieriai, du balkonai su vaizdu į Katedrą, židinys, parketas, rekuperacija, markizės. Antrame aukšte įrengtas butas pilnai atitinka pilnaverčio buto standartus, nes jame yra viskas ko reikia gyvenimui, o pastogėje įrengta poilsio zona su biliardo stalu ir kitomis patalpomis. Namas mūrinis 1932 m statybos, storos sienos, rakinama laiptinė, tik vieni kaimynai laiptinėje, projektavo architektas Bitė, o vėliau teko pačiam apsigyventi. Prie namo yra 3,59 a žemės sklypas, butui priskirta 1,30 a žemės nuoma, nemokamas stovėjimas automobiliui. Labai gera vieta, galima sakyti pati miesto širdis, šalia miesto parkas, Šiaulių dvaro teritorija, Polifonijos pastatas, buvusio Lietuvos pašto statiniai, netoli bulvaras, Didždvario gimnazija ir kitos vaikų ugdymo įstaigos, centrinė turgavietė, autobusų stotelės, puikus susisiekimas su visais rajonais. Name tik vienas gyvenamasis butas, todėl vakarais jausitės kaip name, šalia įsikūrusios dvi įmonės, kurios dirba tik dieną. Esant poreikiui yra galimybė įsirengti komercines ar administracines patalpas. Kieme galima įsigyti papildomai garažą už atskirą mokestį. Daugiau informacijos tel. +37067145995.