NT nuoma ir pardavimai Šiaulių apskrytije

Mobilusis
+37065780667

+37067145995

dirbame
Pir-Pen: 08.25 -17.00
el.paštas
sauliausbustas@gmail.com
Mus rasite
Dvaro g. 64-101 (iš kiemo pusės), Šiauliai

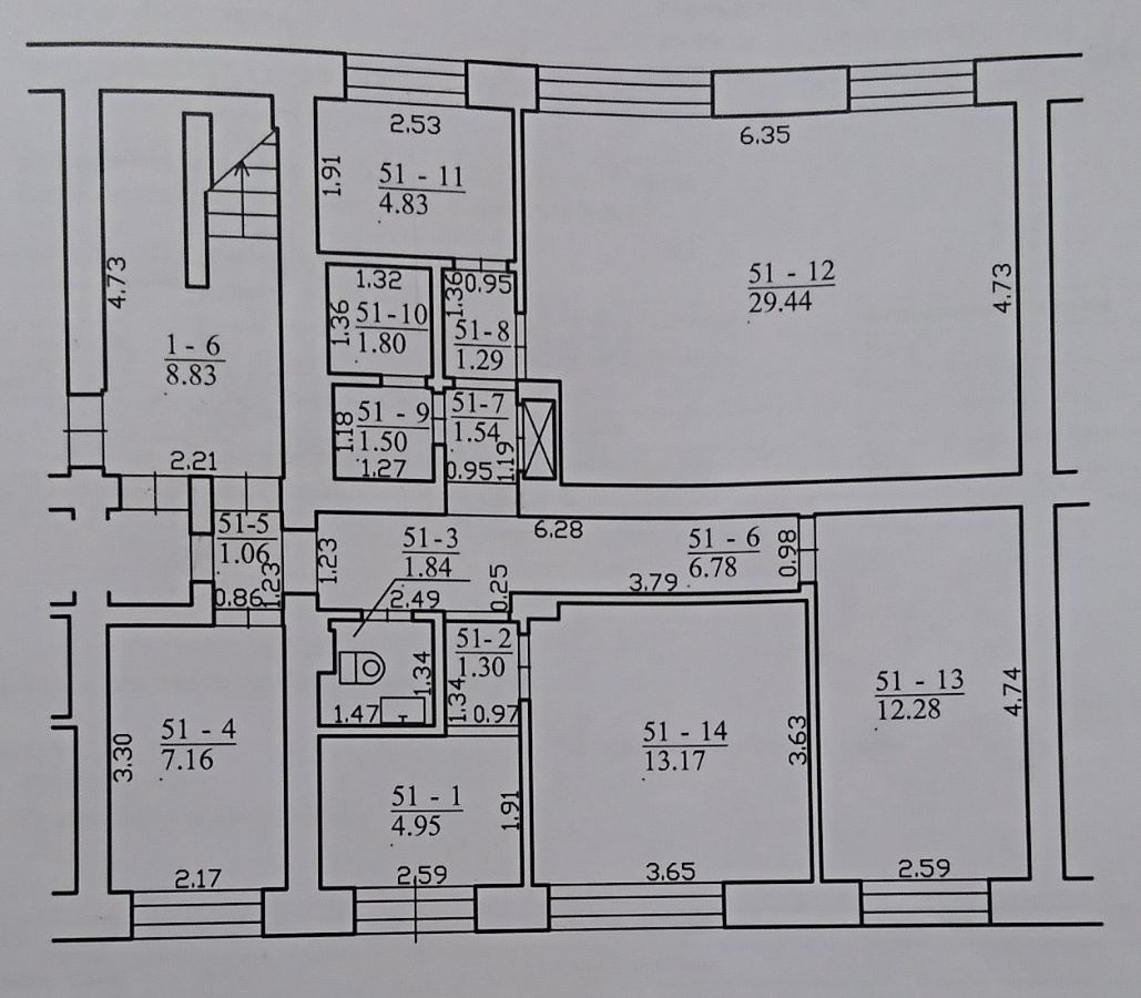
Šiauliai, Centras, Ežero g., biuro, prekybinės, paslaugų paskirties patalpos


Plotas:  88,94 m²

Patalpų skaičius:  5

Kaina: 90 000 €

Parduodamos labai gerai įrengtos 88,94 m² komercinės-administracinės patalpos Ežero g. 16. Patalpos randasi pirmame daugiabučio namo aukšte, įrengti keturi kabinetai su virtuve ir san. mazgais, visuose kabinetuose yra kriauklės, patalpos puikiai tinka grožio paslaugų teikimui. Didžioji dalis langų iš gatvės pusės, galima reklama, atskiras įėjimas iš gatvės pusės, bendras įėjimas iš kiemo pusės, plastikiniai langai, įrengta priešgaisrinė ir apsaugos signalizacija, apsauginės žaliuzės, vertikalios žaliuzės ant langų, visos miesto komunikacijos. Patalpos nuomojamos grožio paslaugų veiklai, išvedžiota elektros ir interneto instaliacija iki darbo vietų, kontroliniai elektros skaitikliai, patalpos gali būti pritaikytos ir kitai veiklai. Namas mūrinis 1962 m. statybos, tvarkingas, automobilių stovėjimo aikštelė. Patalpos randasi labai geroje vietoje šalia judrios Ežero gatvės, šalia Vilniaus gatvės, netoli visuomeninio transporto stotelės, Chaimo Frenkelio rūmai, Sodros pastatas, vaikų ugdymo įstaigos ir maisto prekių parduotuvės. Žemės sklypas prie namo 22,91 a, patalpoms nuosavybes teise priklauso 0,95 a žemės. Patalpos puikiai tinka investicijai, nupirkai ir nuomoji, galimybė perleisti nuomininkus, puikiai tiktų dviejų butų įrengimui. Esant poreikiui galime patalpas administruoti ir ieškoti kitų nuomininkų. Daugiau informacijos tel. 867145995.

Daugiau skelbimų ir nuotraukų galite rasti paspaudę šią brokerio nuorodą: https://www.realu.lt/brokeriai/saulius-sendzikas