NT nuoma ir pardavimai Šiaulių apskrytije

Mobilusis
+37065780667

+37067145995

dirbame
Pir-Pen: 08:00 -15:00
el.paštas
sauliausbustas@gmail.com
Mus rasite
Vilniaus g. 118, Šiauliai

Telšių m., Paragų g., namų valdos, sodo sklypas


Objekto tipas:  Sklypas

Plotas : 4,85a

Paskirtis:  
Namų valda, sklypas soduose

Kaina:  12000 Eur


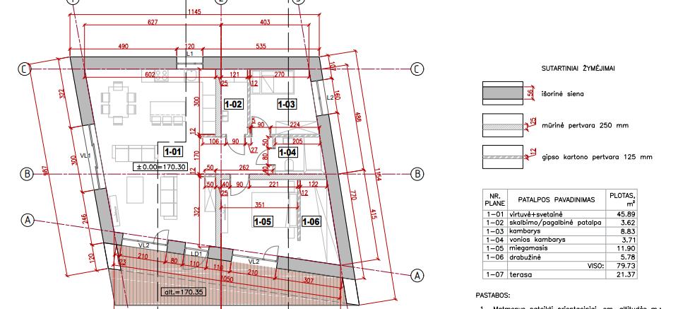
Parduodamas pigiai žemės sklypas su gyvenamojo namo projektu ir statybos leidimu Paragų g. 14, Telšiai. Žemės sklypo plotas 4,85 a, netaisyklingo stačiakampio formos, mėgėjų sodų bendrijoje, sklype įvesta elektra, suderintas projektas ir gautas statybos leidimas gyvenamojo namo 79,73 m² statybai su 21,37 m² terasa. Namo plotas 11,50x10,40 m, name suprojektuota didelė svetainė su virtuve 45,89 m², 2 miegamieji kambariai, san. mazgas, pagalbinė patalpa ir drabužinė. Esant poreikiui projektą galima koreguoti. Namo plotas iki 80 m², kas leidžia lengviau priduoti namą eksploatacijai. Sklype dar yra medinis namukas, kurį reikės vėliau nugriauti, tačiau statybų metu galima bus naudotis. Sklypas randasi labai ramioje vietoje, netoli Džiuginėlių piliakalnis, atstumas iki miesto centro tik 3 km, patogus susisiekimas. Dėl išsamesnės informacijos teirautis tel. +37067145995.

Daugiau skelbimų ir nuotraukų galite rasti paspaudę šią brokerio nuorodą: https://www.realu.lt/brokeriai/saulius-sendzikas