NT nuoma ir pardavimai Šiaulių apskrytije

Mobilusis
+37065780667

+37067145995

dirbame
Pir-Pen: 08.25 -17.00
el.paštas
sauliausbustas@gmail.com
Mus rasite
Dvaro g. 64-101 (iš kiemo pusės), Šiauliai

Šiauliai, Centras, Vairo g., biuro, prekybinės, paslaugų, sandėliavimo, maitinimo paskirties patalpos nuomai


Plotas: 50 - 850 m²

Kaina mėn.: 500 - 5 000 €

Aukštas: 0 - 1

Patalpų skaičius: 1 - 5

Aukštų sk.: 2

Metai: 2007

Paskirtis: Administracinė, prekybos, paslaugų, sandėliavimo, maitinimo

Šildymas: Dujinis

Vanduo: Miesto vandentiekis, vietinis vandentiekis

Pastato energijos suvartojimo klasė: D

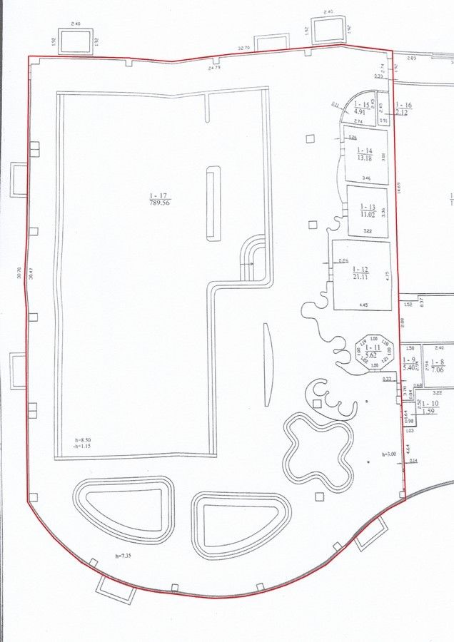
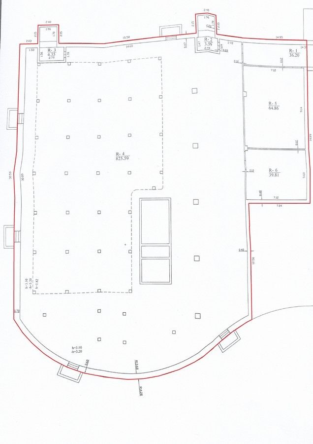
Išnuomojamos išskirtinės patalpos 850 m² pastate Vairo g. 2 su automobilių stovėjimo aikštele. Sporto komplekse Impuls, kur buvo įrengtas baseinas su pirčių zona išnuomojama visa erdvė, kuri puikiai tiktų prekybos centrui įrengti, sporto varžyboms organizuoti, medicinos centro paslaugoms teikti ir panašiai. Didelė 790 m² vientisa patalpa, kurios aukštis virš 7 m, randasi labai gerai matomoje vietoje, atstumai tarp kolonų 6x18 m leidžia patogiai išdėstyti prekybinę, sporto ar kitokią atvirą erdvę bei įrengti pagalbines patalpas šalia, galimybė dalinti patalpą į kelias prekybines erdves, galimybė įrengti antrą aukštą. Rūsyje yra 940 m² patalpa leidžianti įrengti sandėliavimo patalpas su liftu, nuomos kaina 2 Eur/kv.m. 2007 m. statybos Sporto ir pramogų centras randasi labai geroje vietoje šalia dviejų pagrindinių gatvių Tilžės ir Pramonės, puikus matomumas iš Tilžės gatvės, labai geras susisiekimas su visais rajonais, šalia traukos centrai LIDL, Splius, automobilių remonto dirbtuvės ir kiti. Pastate nuomojamos ir kitos patalpos nuo 50 m² iki 100 m², buvusi kavinė su pagalbinėmis patalpomis bei dalis lošimo automatų salono patalpų, kurios gali būti pritaikytos Jūsų veiklai, nuomos kaina 10 Eur/kv.m. Laukiami visokie pasiūlymai, galima rezervacija. Daugiau informacijos tel. 867145995.